Une expertise de l'immobilier Parisien depuis 1988

Paris XVI° / Coeur d'Auteuil / Rue Leconte de Lisle / M° Église d'Auteuil


< Retour

Partager sur

gallery loader

Appartement 110 m² - 4 Pièces - Paris 1 350 000


Description de l'offre Ref 07112025


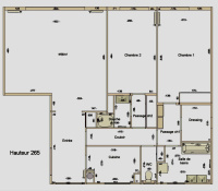
Dans résidence moderne ravalée avec jardin digicode et interphone, bel appartement rénové 4 pièces de 110 m² (soit 104,64 m² loi Carrez + 10 m² de balcon-terrasse pondéré) composé d'une entrée sur jardin ouvrant sur double réception sur terrasse et jardin plein soleil exposé Sud, cuisine équipée, deux chambres spacieuses, salle de douche, cabinet de toilette avec WC, grande salle de bains avec 2ème WC et fenêtre (possibilité 3ème chambre) et dégagement-dressing. Appartement intégralement rénové par architecte il y a 3 ans. Vue dégagée en face d'hotels particuliers de 2 étages. très ensoleillé équivalent à un 4ème étage, belle luminosité. Chauffage cpllectif au gaz. Un seul copropriétaire par étage entrée priveé avec jouissance d'un cagibi de 2 m² en plus et grand local vélos-poussettes. Parking au 2ème sous-sol de l'immeuble vendu 50 000 € en sus du prix de vente affiché.

Diagnostics de performance énergétique


DPE
DPE

Logement à consommation énergétique excessive : classe F

Montant estimé des dépenses annuelles d'énergie pour un usage standard est compris entre 3 310 € et 4 530 € . Prix moyens des énergies indexés sur les années 2021, 2022 et 2023 (abonnements compris).

Descriptif du bien


Code postal 75016


Surface habitable (m²) 110 m²


Surface loi Carrez (m²) 104,64 m²


Nombre de chambre(s) 2


Nombre de pièces 4


Etage 1


Ascenseur OUI


Nb de salle de bains 1


Nb de salle d'eau 1


Cuisine SEPAREE


Type de cuisine EQUIPEE


Mode de chauffage Gaz


Type de chauffage Radiateur


Format de chauffage Collectif


Terrasse OUI


Exposition SUD


Année de construction 1975


Copropriété OUI


nombre de lots 9


plan de sauvegarde NON


statut du syndic pas de procédure en cours


Prix de vente honoraires TTC inclus 1 350 000 €


Prix de vente honoraires TTC exclus -48 650 240 €


Honoraires TTC à la charge acquéreur -102,77 %


Charges 240 €


Cette annonce vous intéresse ?


* Champs obligatoires

* : Les informations recueillies sur ce formulaire sont enregistrées dans un fichier informatisé par La Boite Immo agissant comme Sous-traitant du traitement pour la gestion de la clientèle/prospects de l'Agence / du Réseau qui reste Responsable du Traitement de vos Données personnelles.
La base légale du traitement repose sur l’intérêt légitime de l'Agence / du Réseau.
Elles sont conservées jusqu'à demande de suppression et sont destinées à l'Agence / au Réseau.
Conformément à la loi « informatique et libertés », vous pouvez exercer votre droit d'accès aux données vous concernant et les faire rectifier en contactant l'Agence / le Réseau.
Si vous estimez, après avoir contacté l'Agence / le Réseau, que vos droits « Informatique et Libertés » ne sont pas respectés, vous pouvez adresser une réclamation à la CNIL.
Nous vous informons de l’existence de la liste d'opposition au démarchage téléphonique « Bloctel », sur laquelle vous pouvez vous inscrire ici : https://www.bloctel.gouv.fr 
Dans le cadre de la protection des Données personnelles, nous vous invitons à ne pas inscrire de Données sensibles dans le champ de saisie libre
Ce site est protégé par reCAPTCHA, les Politiques de Confidentialité et les Conditions d'Utilisation de Google s'appliquent.